High Street, Lechlade

4 bedroom Town house to rent

£1,850 PCM

  • 4 bedroom
  • 2 bathroom
  • 3 reception

Key Features

  • Grade II listed
  • Four bedrooms
  • Sitting room
  • Dining room
  • Breakfast room
  • Garden room
  • Kitchen
  • Enclosed southerly facing garden
  • Close to the market place and riverside walks

Description

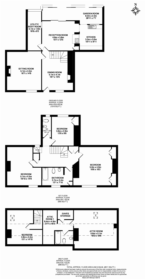
CANOPIED ENTRANCE

Entrance door with leaded light window to side.

DINING HALL (5.05 x 4.09)

Window to front. Feature fireplace. Staircase to first floor. Radiator.

SITTING ROOM (5.05 x 4.5)

Window to front. Feature fireplace. Two radiators. Leaded light window to rear.

BREAKFAST ROOM (4.75 x 3.78)

Patio doors to garden room. Leaded light window to rear. Built in cupboard.

KITCHEN (3.33 x 3.02)

Window to rear. Stable door to garden room. Stainless steel sink unit with cupboard below. Further good range of wall and base units. Tiled splashbacks. Built in electric oven. Built in gas hob. Space for a fridge freezer.

GARDEN ROOM (8.2 x 2.31)

Of timber construction. Two patio doors to the garden.

LAUNDRY/UTILITY (5.08 x 1.88)

Window to rear. Flagstone flooring. Radiator. Door to garden room.

LANDING

Leaded light window to rear. Cupboard housing a boiler for domestic hot water and central heating.

BEDROOM ONE (5.03 x 4.62)

Window to front. Two built in wardrobes. Two radiators.

BEDROOM TWO (5.13 x 4.5)

Leaded light window to rear. Window to front. Radiator.

BEDROOM THREE (3.81 x 2.95)

Window to rear. Radiator. Built in cupboard.

BATHROOM (3.68 x 2.39)

Window to front. Suite comprising of a panelled bath with shower above. Low level WC and wash basin. Towel rail.

CLOAKROOM

Window to rear. Low level WC and wash basin.

BEDROOM FOUR (4.6 x 4.52)

BATHROOM

ATTIC ROOM (5.56 x 5.11)

OUTSIDE

The rear garden is southerly facing and enclosed. There is gated side access. Decking and patio areas. Flower and shrub borders.

PARKING

Whilst there is currently unrestricted parking on the High Street immediately outside the property, this is not an allocated area.

LECHLADE ON THAMES

Lechlade-on-Thames, is a market town at the southern edge of the Cotswolds in Gloucestershire. It is the highest point at which the River Thames is navigable. The town is named after the River Leach that joins the Thames near here and is a popular venue for tourism and river-based activities. There are several pubs, some antique shops, a convenience store, food outlets, a garden centre and a Christmas shop. Near the 15th century Church of England parish church of Saint Lawrence, in the centre of the town, there is a large open space which is now a car park. The main roads through the town are busy, as the town is at the crossroads of the A417 and A361. Where the A361 enters the town from the south it crosses the River Thames on Halfpenny Bridge. Another tributary of the Thames, the River Coln, joins the Thames at the Inglesham Round House.


Location


Floorplan

Floorplan

EPC

EPC for High Street, Lechlade

Similar Properties

The Butts, Poulton
To Rent

The Butts, Poulton

2 Bed Cottage To Rent
Guide price £1,400 PCM
Sherborne Street, Lechlade
To Rent

Sherborne Street, Lechlade

3 Bed Apartment To Rent
Guide price £1,200 PCM
Perrinsfield, Lechlade
Let Agreed

Perrinsfield, Lechlade

3 Bed Semi-detached house Let Agreed
Guide price £1,150 PCM