Lygon Court, Fairford

3 bedroom Retirement property Sold STC

£385,000

  • 3 bedroom
  • 2 bathroom
  • 3 reception

Key Features

  • A larger than most three bedroom cottage
  • Available to those aged 55 years and above
  • Upgraded by the current owner
  • Sitting room and dining room
  • Conservatory
  • Kitchen and utility
  • Garage and garden
  • Communal gardens

Description

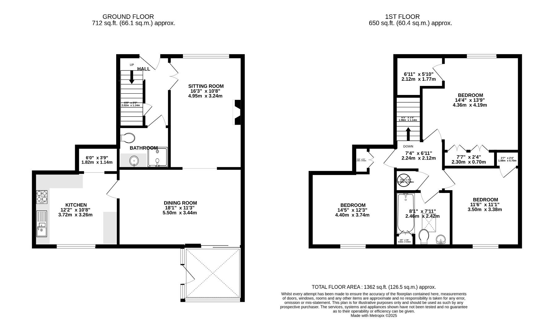
ENTRANCE HALL

Entrance door with obscure glazed panel. Staircase to first floor with chair lift. Understairs cupboard. Tiled flooring with underfloor heating.

SHOWER ROOM

A refitted suite comprising of a shower cubicle, vanity unit and low level WC. Tiled surrounds and tiled flooring with underfloor heating. Extractor fan. Ladder radiator.

SITTING ROOM (4.95m x 3.25m)

Glazed panelled double doors from the hallway. Window to front overlooking the grounds. Convector heater. Built in bookshelves with cupboards below. Archway to the dining room.

DINING ROOM (5.51m x 3.43m)

Window to rear. Patio doors to the conservatory. Two convector heaters.

KITCHEN (3.71m x 3.25m)

Window to rear. Tiled floor with underfloor heating. A refitted kitchen comprising of a one and a half bowl sink unit with mixer tap above set into a Corian worksurface with cupboard below. Further range of wall and base units. AEG induction hob with extractor canopy above. Built in AEG double oven. Space and plumbing for a dishwasher. Further utility space.

UTILITY ROOM

Rolled edge worksurface. Water softener. Space and plumbing for automatic washing machine and space for a tumble dryer. Fitted shelving. Tiled flooring with underfloor heating.

CONSERVATORY

Tiled flooring with underfloor heating. Television point. Glazed door to garden.

LANDING

Roof access. Convector heater. Built in linen cupboard.

BEDROOM ONE (4.37m x 4.19m)

Window to front. Convector heater. Range of built in wardrobes and a walk in wardrobe.

BEDROOM TWO (3.73m x 3.25m)

Window to rear. Convector heater. Built in double wardrobe.

BEDROOM THREE (3.51m x 3.05m)

Window to rear. Convector heater. Built in wardrobe. Roof access.

BATHROOM

Velux window to rear. A refitted suite comprising of a panelled bath, vanity unit and low level WC.

OUTSIDE

To the front, a paved pathway leads to the entrance. Laid to lawn.

The rear garden is enclosed by timber fencing. Laid to patio and to gravel. Water feature. Cultivated borders. Timber shed. Rear pedestrian access.

COMMUNAL GARDENS

Lygon Court is set around the central communal gardens.

GARAGE

The garage is sited the first from the left below flat 32. Up and over door. Power.

AGENTS' NOTE

Lygon Court is a prestigious development for those aged 55 years and above. There is a management or service charge of £253.77 monthly (2025-2026) and this covers communal facilities such as the gardens, lighting of communal areas, buildings insurance, external maintenance and the visiting site manager.

FAIRFORD

Fairford is a small market town in Gloucestershire. The town lies in the Cotswolds on the River Coln, about 6 miles (9.7 km) east of Cirencester, 4 miles (6.4 km) west of Lechlade and 9 miles (14 km) north of Swindon. Nearby are RAF Fairford and the Cotswold Water Park. The town's secondary school is Farmor's School, an 11-18 co-educational Academy. The Church of England parish church of Saint Mary is renowned for its complete set of medieval stained glass, stone carvings and misericords. St. Mary's is of national historical and architectural importance because it houses the most complete set of mediaeval stained glass windows in the country. Fairford is surrounded by countryside and river walks and is served by a good range of shops, pubs and an Italian restaurant. There is also a library, post office, dentist, doctor's surgery, cottage hospital, an optician and a weekly market.


Location


Floorplan

Floorplan

EPC

EPC for Lygon Court, Fairford